Apartment 8, The Icon The Icon

Visit our showhomes

  • £1,024,950
  • 3
     bedrooms
  • 2
     bathrooms

The Icon Apartment 8, The Icon

Jump to:

Development Jump Navigation

Image
Penthouse Show Apartment Living Area

Created for Living

Luxurious and impressive second floor apartment spread across 1200 sq ft, boasting an expansive open-plan living area with two private terraces offering views overlooking green space towards the city. 

Save thousands on Apartment 8, The Icon with a Stamp Duty Contribution up to £46,245!* Get in touch with the Sales Team to find out more! 

Introducing Apartment 8, The Icon, an exquisite three bedroom second-floor apartment boasting an impressive open-plan kitchen/dining/living area that effortlessly merges elegance with practicality. The modern kitchen is equipped with fully integrated energy-efficient appliances, Caesarstone worktops, and plenty of space, perfect for entertaining and family gatherings. Relax on one of the two private terraces that can be accessed from the spacious kitchen/living/dining area with views overlooking the green open space of the cricket pitch. 

This home also features three spacious bedrooms, including a beautiful principal bedroom complete with an built-in wardrobe with feature LED lighting, an elegant en-suite, and full width and height glazing filling the room with an abundance of natural light. The second bedroom also features a fitted wardrobe, ideal for housing all your items to keep the space clutter free. Triple glazing features throughout this home to enhance energy efficiency and insulation performance. The contemporary bathroom exudes luxury, featuring modern sanitaryware with matt black fixings, a heated towel rail, and a mirrored vanity unit. Ample storage is provided and secure underground parking with access to EV charging is also included with this beautiful home. Step outside to unwind in the peaceful podium courtyard garden, a lovely spot to relax with neighbours or friends. And with secure underground parking with access to EV charging, convenience is at your fingertips.  Plot 8 is approx. 1200 sq ft and ready to move into Summer 2025. 

Apartment 8, The Icon is approx. 1200 sq ft and ready to move into August/September 2025.

Located just 1.9 miles from legendary Cambridge, The Icon is a collection of studio, 1, 2 & 3 bedroom apartments and penthouses with cutting-edge sustainability, transformative placemaking, and a novel approach to design at its core - this is truly a home of invention. The Icon is the pinnacle of the multi-award winning Knights Park development, you'll be right at the heart of Eddington, one of Britain's most environmentally conscious neighbourhoods, with a welcoming, like-minded community. Ideally positioned opposite Eddington's Market Square with an array of cafes, restaurants and a supermarket right on your doorstep for convenience and just a stone's throw from the Ofsted rated 'Outstanding' University of Cambridge Primary School. 

Surrounded by 50 hectares of green open space, experience elevated living at its finest in this remarkable destination. The apartments at Fusion capture the essence of contemporary city living with exceptional standards of energy efficiency and smart eco features help to reduce energy usage and environmental impact. These include: high levels of insulation, triple glazed windows and energy and water efficient appliances. Solar PV panels create renewable energy for homes, and Mechanical Ventilation Heat Recovery ensures a constant flow of fresh air. An innovative waste and recycling system is used throughout Knights Park and rainwater is gathered, filtered and then used as a renewable source of clean water for toilets, washing machines and garden watering. 


*Stamp Duty Contribution terms and conditions apply, available on single stamp duty only. Not to be used in conjunction with any other offer. External image of The Icon and podium garden are CGIs, for indicative purposes only. Internal images of the Penthouse Show Apartment (Plot 10) at The Icon - individual layouts may vary. Actual image of The Icon concierge. 

Tenure:
Leasehold
Service charge:
£5574.14
Council tax band:
TBC
Time remaining on lease:
250 years

Features

  • Save up to £46,245* with a Stamp Duty Contribution*

  • Expansive open-plan kitchen/living/dining area with fully integrated kitchen and Caesarstone worktops

  • Two private terraces with views overlooking the cricket pitch

  • Principal bedroom with built in mirrored wardrobe, elegant en-suite and large full height glazing

  • Centrally located at the heart of Eddington, minutes' walk from public transport, cycle paths, supermarket, restaurants and cafes

  • Roof top garden with exclusive use for all Icon residents offering views towards the city

  • Concierge service for all your day to day needs

  • Close proximity to Ofsted rated 'Outstanding' primary school and world-class colleges and Universities

  • Parking space in secure fob accessed underground carpark

Tenure:
Leasehold
Service charge:
£5574.14
:
Council tax band:
TBC
Time remaining on lease:
250 years
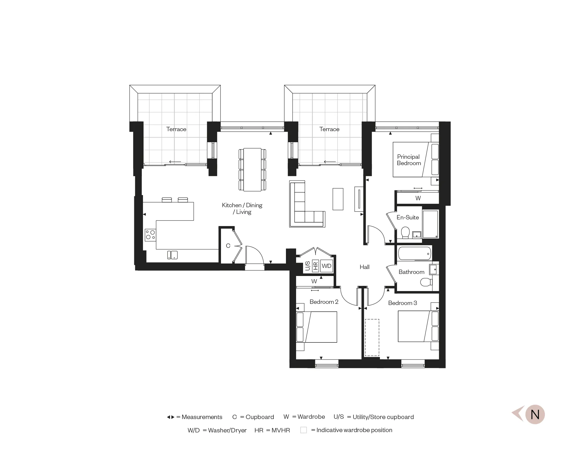
Floor Plans
Apartment 8, The Icon Floorplan
Kitchen/Dining/Living
10.60m
 x 
6.30m
34'9" x 20'8"
Principal Bedroom
3.50m
 x 
5.30m
11'6" x 17'5"
Bedroom 2
3.15m
 x 
3.40m
10'4" x 11'2"
Bedroom 3
3.60m
 x 
3.40m
11'10" x 11'2"
Terrace 1
3.60m
 x 
3.40m
11'10" x 11'2"
Terrace 2
3.60m
 x 
3.40m
11'10" x 11'2"
Image
The Icon: Plot 8 Floorplan
Site Plan
Specification

Kitchen

  • Matt finish handleless units with contemporary black trim and soft close to doors and drawers 
  • Caesarstone worktop with matching upstand and splashback behind hob (where applicable) 
  • Induction hob
  • Integrated single oven
  • Integrated microwave 
  • Integrated compact combi oven/ microwave to studio 
  • Integrated dishwasher • Integrated fridge/freezer 
  • Integrated cooker hood or ceiling hood where hob on island or peninsula 
  • Stainless steel undermounted sink with contemporary matt black mixer tap 
  • LED feature lighting to wall units 
  • Integrated pull out recycling bin 
  • Washer/dryer (freestanding in  hallway cupboard)
Image
Icon Show Apartment - Kitchen Spec
Image
The Icon Show Apartment - Living Room Spec
Image
Icon Two Bedroom Show Apartment - Principal bedroom 2
Image
Icon Two Bedroom Show Apartment - Bathroom

Bathroom

Bathroom 

  • White sanitaryware with contemporary matt black brassware
  • Bath with shower over and glass screen
  • Feature mirror cabinet and shelf  with LED lighting 
  • Recessed shower shelf
  • Bath panel to match vanity top
  • Large format wall and floor tiles
  • Heated matt black towel rail

En-suite/Shower room 

  • White sanitaryware with contemporary matt black brassware 
  • Low profile shower tray with glass shower door
  • Feature mirror cabinet and shelf with LED lighting
  • Recessed shower shelf
  • Large format wall and floor tiles
  • Heated matt black towel rail
Image
Icon Show Apartment - Kitchen Spec
Image
The Icon Show Apartment - Living Room Spec
Image
Icon Two Bedroom Show Apartment - Principal bedroom 2
Image
Icon Two Bedroom Show Apartment - Bathroom

Finishes

Decorative Finishes

  • Front entrance door with multi-point locking system 
  • High efficiency triple glazed aluminium timber composite windows
  • Timber internal staircase with carpeted treads and risers to duplex apartments 
  • White painted flush internal doors with contemporary matt black ironmongery 
  • Built in mirrored wardrobe with  sliding doors and LED lighting  to principal bedroom 
  • Square cut skirting and architrave
  • Walls painted in white emulsion
  • Smooth ceilings in white emulsion

Floor Finishes

  • Amtico flooring to entrance hall, kitchen/dining/living room and  bedroom area to studio
  • Carpet to bedrooms and stairs  to duplex apartments
  • Large format tiles to bathroom/shower room and en-suite

External Finishes

  • Porcelain tiles to terrace 
  • Exterior treatments comprise white and buff facing bricks with biodiverse green roofs
Image
Icon Show Apartment - Kitchen Spec
Image
The Icon Show Apartment - Living Room Spec
Image
Icon Two Bedroom Show Apartment - Principal bedroom 2
Image
Icon Two Bedroom Show Apartment - Bathroom

Electrical

  • Downlights to entrance hall, kitchen/dining/ living room, bathroom/shower room, en-suite and principal bedroom
  • Pendant fittings to other bedrooms • LED feature lighting to wall units in kitchen
  • Selected sockets with integrated USB port
  • Shaver sockets to bathroom/shower room and en-suite
  • TV, BT and data points to selected locations 
  • BT & Virgin fibre connection to all properties for customer’s choice of broadband provider
  • Pre-wired for customer’s own  Sky Q connection
  • Video entry system to every apartment, linked to main entrance door, where accessed off communal area
  • External lighting to terrace • Hard-wired smoke and heat detectors
  • Sprinkler system to all apartments
  • Spur for customer’s own installation of security alarm panel
Image
Icon Show Apartment - Kitchen Spec
Image
The Icon Show Apartment - Living Room Spec
Image
Icon Two Bedroom Show Apartment - Principal bedroom 2
Image
Icon Two Bedroom Show Apartment - Bathroom

Heating & Water

  • Underfloor heating throughout  each apartment
  • Heated matt black towel rails to bathroom/shower room and en-suite
  • District heating, metered to each property
Image
Icon Show Apartment - Kitchen Spec
Image
The Icon Show Apartment - Living Room Spec
Image
Icon Two Bedroom Show Apartment - Principal bedroom 2
Image
Icon Two Bedroom Show Apartment - Bathroom

Parking & Communal Areas

  • Parking space in basement car park 
  • Electric car charging points available for communal use
  • Fob controlled access system to entrance lobby
  • Lift access to all floors
  • Cycle storage space at basement or podium level
  • Post boxes provided for all apartments within communal entrance lobby (where apartment is accessed off communal area)
Image
Icon Show Apartment - Kitchen Spec
Image
The Icon Show Apartment - Living Room Spec
Image
Icon Two Bedroom Show Apartment - Principal bedroom 2
Image
Icon Two Bedroom Show Apartment - Bathroom

General

  • 10 year NHBC warranty
  • 250 year lease 
  • A service charge will be payable for the maintenance of the shared facilities and communal areas
Image
Icon Show Apartment - Kitchen Spec
Image
The Icon Show Apartment - Living Room Spec
Image
Icon Two Bedroom Show Apartment - Principal bedroom 2
Image
Icon Two Bedroom Show Apartment - Bathroom
Buying Calculators
Mortgage calculator

By putting in a few simple details we'll work out how much your monthly mortgage repayments could be.*

  • £

Your mortgage calculation

Deposit
Mortgage Required
Monthly Payments

*Hill do not provide mortgage advice, but our sales consultants will happily point you in the direction of an independent mortgage advisor who can help find the best deal for you.

Stamp Duty calculator

Our calculator provides a guide for how much Stamp Duty you will need to pay when purchasing your new property.*

  • £

Your Stamp Duty calculation

You pay % up to
You pay % up to
You pay % up to
You pay % up to £1,500,000
You pay % over £1,500,000
Total you pay

*First time buyers will not pay any stamp duty on property purchases below £300,000 with further relief available for transactions up to £500,000. Any property purchased over £500,000 by a first time buyer will not be eligible for SDLT relief and standard rates will apply. This calculator is provided as a guide only on how much Stamp Duty Land Tax (SDLT) you will need to pay in England and Northern Ireland. It assumes that you are a UK resident and the property is freehold and is for primary residential purposes. For more information, visit www.gov.uk/stamp-duty-land-tax.

Landscape Logo

Register your interest

Contact us today to find out more about this exciting new collection of 1, 2 & 3 bedroom homes and arrange a viewing of our beautiful show homes.

Address

Knights Park Sales & Marketing Suite
Eddington Avenue
Cambridge
Cambridgeshire
CB3 1SE
Get directions

Address

Eddington Avenue
Cambridge
Cambridgeshire
CB3 1SE
Get directions
Contact our sales team
01223 607200
Opening hours
Sunday: 10:00-17:30
Monday: 10:00-17:30
Tuesday: 10:00-17:30
Wednesday: 10:00-17:30
Thursday: 10:00-17:30
Friday: 10:00-17:30
Saturday: 10:00-17:30

The Icon

The Icon

Developments

    Locations

      Image
      HBF 5 Star Home Builders Federation 2025
      Image
      Hill - What House - Three Times Housebuilder Of The Year
      Image
      CIBSE 2020
      Image
      NHBC Awards 2020